Главная
О дизайнере
Проекты
Услуги
Отзывы
Статьи
Контакты
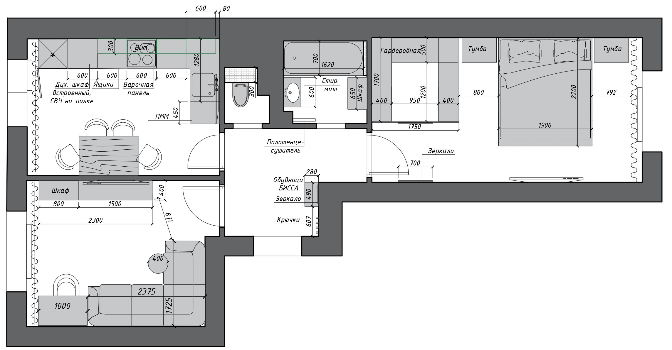
Янино-1 42кв.м, с фото
Проекты
Квартира-студия 28кв.м, фото
Дачный домик 47кв.м, с фото
Малиновый космос, санузел
Загородный дом 300кв.м, с фото
«Японские мотивы» 107кв.м
«Ретро», 50кв.м
«Баланс» 106кв.м, фото
«Яркая классика», 41кв.м
«Под тенью пальмы» 33кв.м, фото
«Цитрусовый микс» 87кв.м, фото
«На набережной» 37кв.м, фото
«Затмение» 42кв.м, фото
Детские и проекты комнат
«Геометрия» 26кв.м
Квартира-студия, проект «Вуаль» 27кв.м, фото