«Баланс» 106кв.м, фото
Проект в ЖК на намыве Финского залива воплощает атмосферу спокойствия и гедонизма.
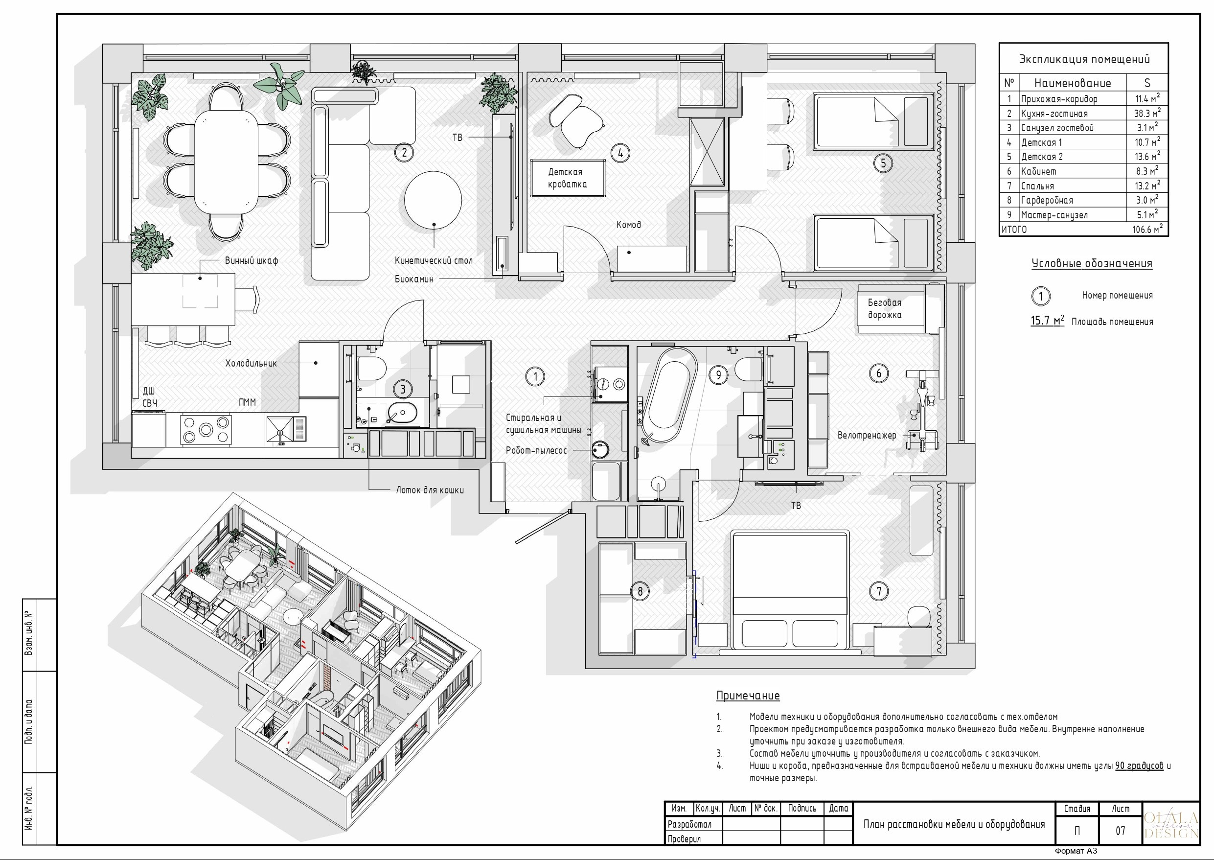
В квартире главным преимуществом являются большие видовые окна, поэтому дизайн был выполнен в минималистичном стиле и природных оттенках, чтобы подчеркнуть их. В итоге, окна стали главным украшением интерьера — своеобразной рамкой для больших «картин» с вечно сменяющимися пейзажами. Здесь было выполнено множество сложных решений: «скрытый» фартук на кухне с откатными фасадами, теплый пол по всей квартире, в малой детской пришлось разместить короб из стеклопакета для огромного наружного блока кондиционера на 4 внутренних блока (необходимо было тщательно обезопасить его).
По желанию заказчиков, в душевой гостевого санузла разместили матовое смарт-зеркало в гостиную, которое становится прозрачным по кнопке, чтобы принимать душ и смотреть на море, когда в квартире больше никого нет. А в мастер-ванной удалось разместить и отдельно стоящую ванну, и душевую зону, для чего просчитывали все до миллиметров. Также необходимо было выделить зону для тренировок на велосипеде и с гантелями, а еще шкаф для униформы, что нам тоже удачно удалось сделать в «кабинете».
Дополнительно, из интересных решений можно отметить дзен-стол с песком, на котором с телефона можно задать любой рисунок и маленький металлический шарик его выполнит. А в детской комнате для двух девочек разместили проектор и магнитную стену под покраску для творчества. Красивые двери с фрамугами до потолка стали дополнительной изюминкой проекта, подчеркивая минималистичный природный стиль.



















































































