Планировочные решения
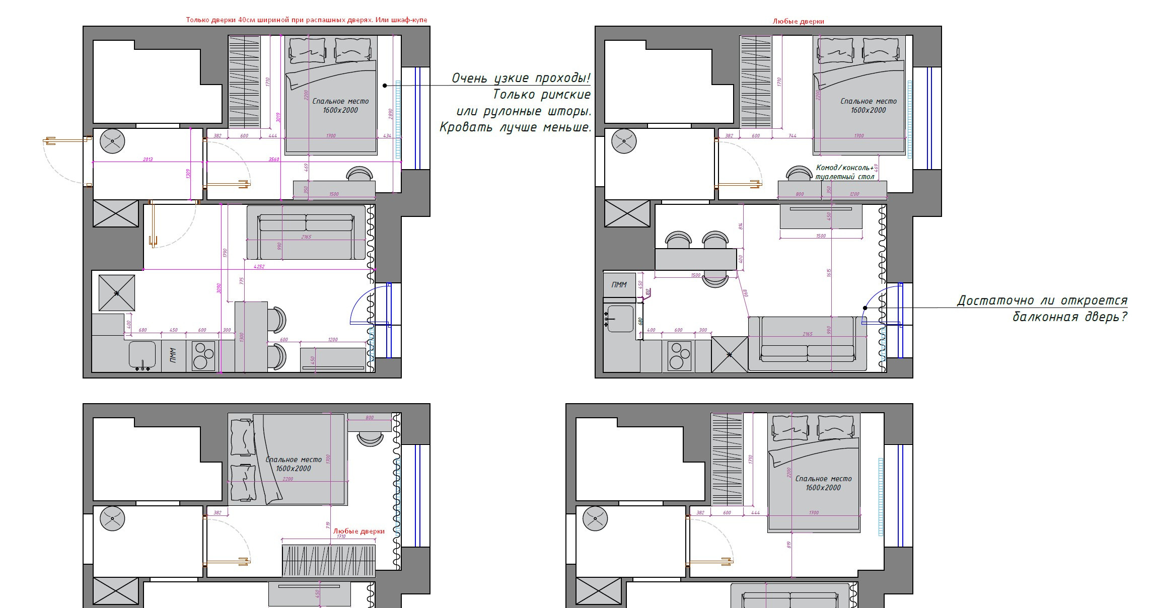
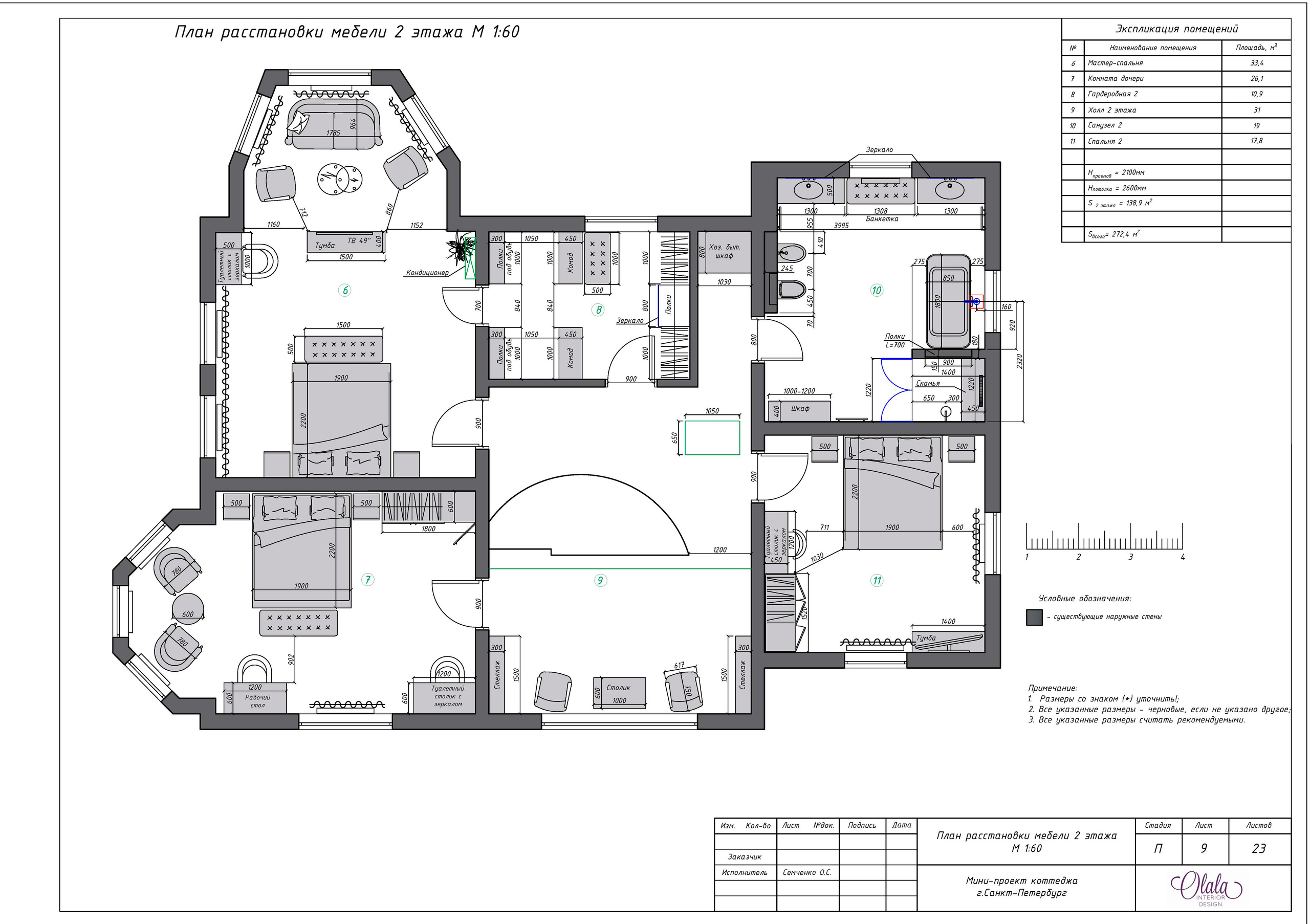
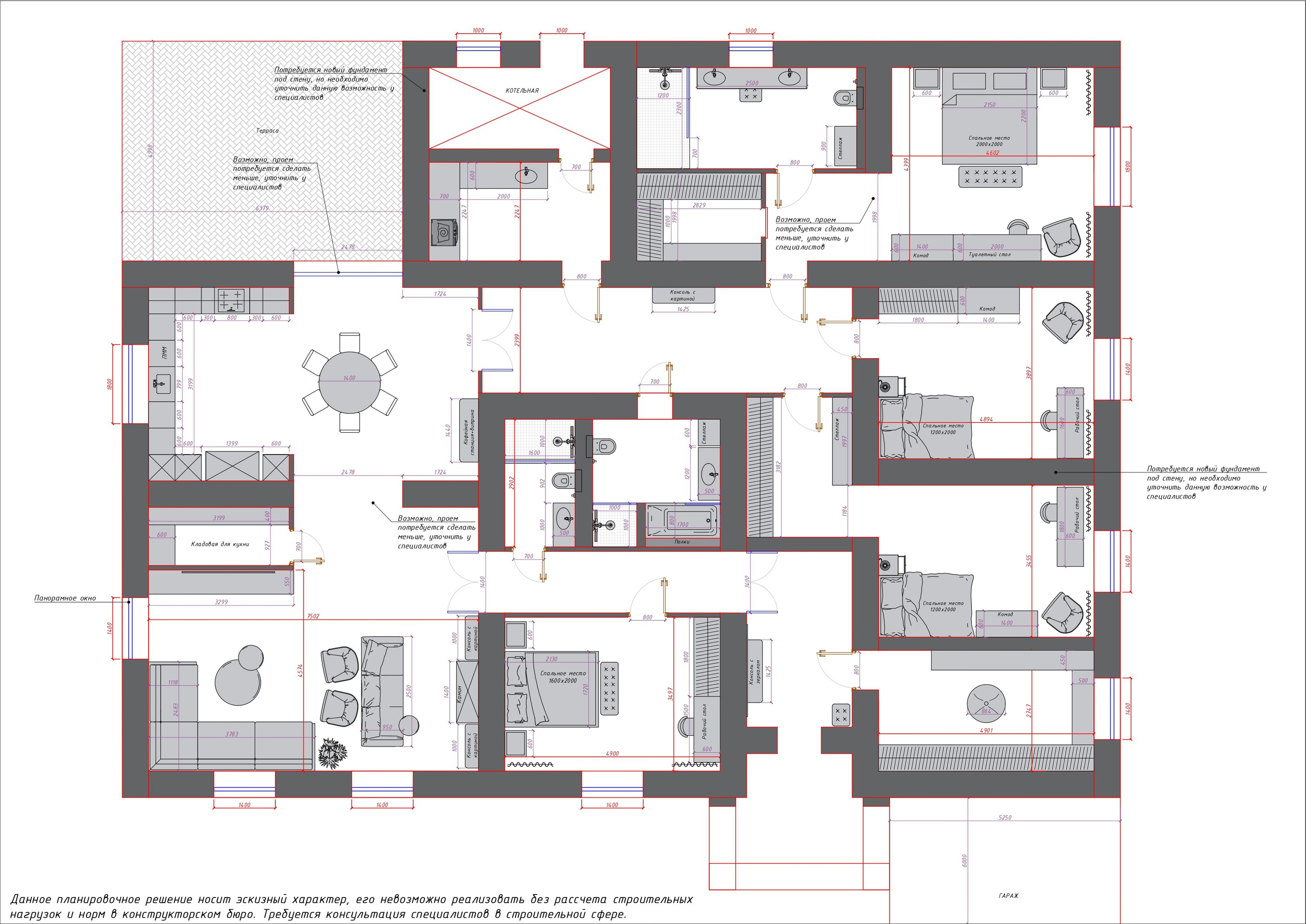
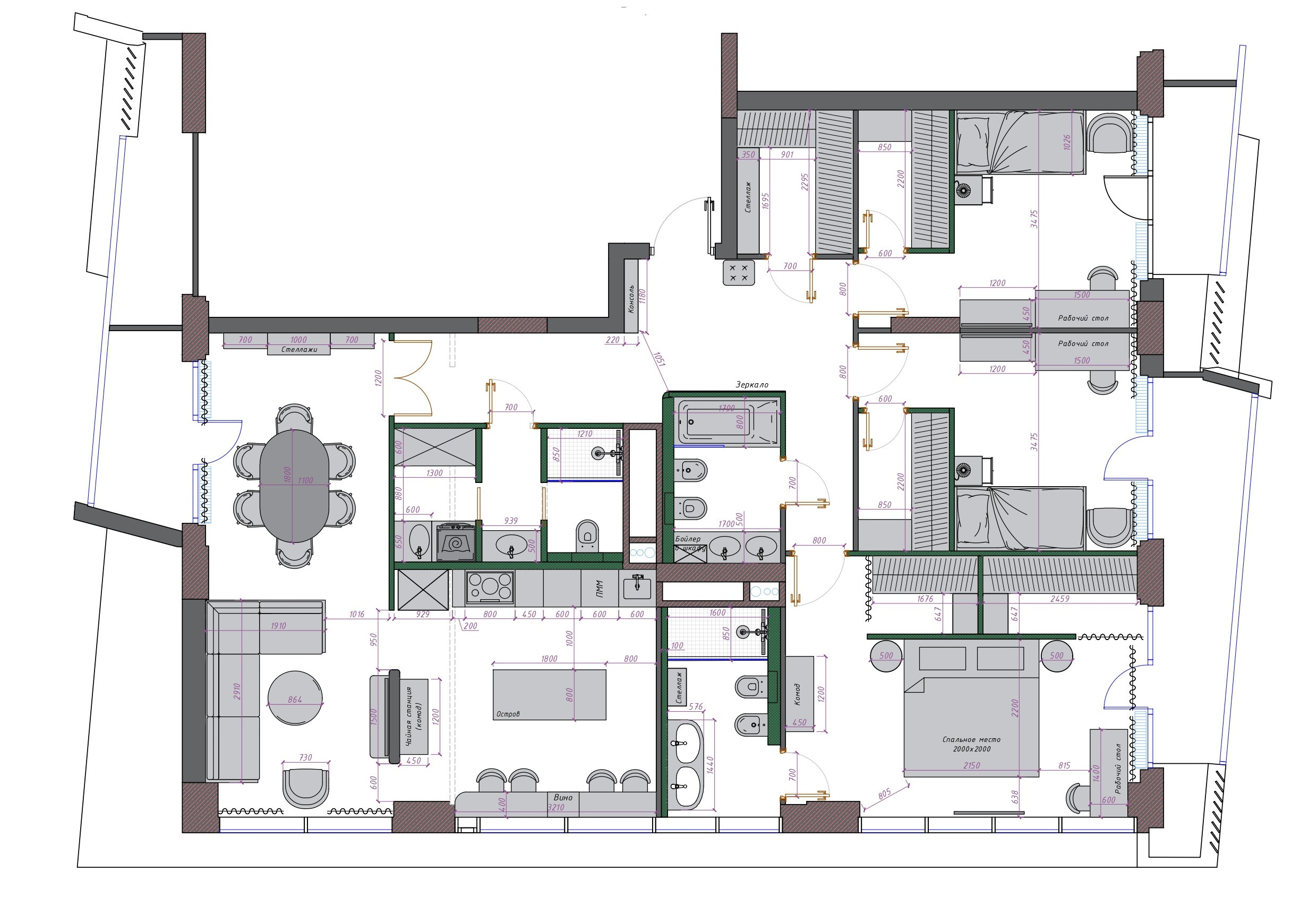
Здесь представлены планировочные решения как из полных дизайн-проектов, так и из консультаций. Всё собрано в одном месте для понимания логики размещения различных зон и примера работы с разными площадями.
Здесь представлены планировочные решения как из полных дизайн-проектов, так и из консультаций. Всё собрано в одном месте для понимания логики размещения различных зон и примера работы с разными площадями.